EEN BEZOEKERSCENTRUM BIJ DE STER?
In 2016 droeg de gemeente Rotterdam De Ster en De Lelie over aan Stadsherstel Historisch Rotterdam NV. De plannen voor het bezoekerscentrum ontstonden kort daarna. Voor het uitbreiden van de activiteiten rond de molens ontbraken praktische voorzieningen voor vrijwilligers en bezoekers. Koffiezetten ging met water uit de brandblusleiding en een eigen toilet ontbrak. De winkel was tegelijk ook werkplaats. En naast De Ster stond een bouwvallige berging waar ook iets mee moest gebeuren.
Door een nieuw bezoekerscentrum ontstonden nieuwe mogelijkheden zonder het historische karakter van de molen zelf te veranderen. Bij het ontwerp van het bezoekerscentrum is aansluiting gezocht bij de kleine gebouwtjes die vroeger achter De Ster stonden en het harmonieert zo met De Ster en de voormalige molenaarswoning naast de molen. Het bezoekerscentrum bestaat uit een kleine keuken, toiletten, een werkplaats en een ontvangstruimte met uitzicht op de Kralingse Plas.
Daarnaast werd ook besloten om de fundering van het bijgebouw naast De Ster op te knappen. Dit gebouw grenst direct aan het bezoekerscentrum en zo konden een aantal werkzaamheden samengevoegd worden. Het bijgebouw is opnieuw ingericht met een museumruimte en een winkel voor de verkoop en het verpakken van specerijen.
De kosten van dit alles waren niet gering. Het herstel van het bijgebouw en de bouw van bezoekerscentrum kostten samen € 310.000. Dit bedrag is bijeen gebracht door diverse Rotterdamse fondsen en donaties. Ook de provincie Zuid-Holland en het Prins Bernard Cultuurfonds hebben een bijdrage geleverd, zie ook de pagina fondsen.
SITUATIE VOORAF
De situatie achter De Ster voor de bouw van het bezoekerscentrum. Links nog een stukje van De Ster en rechts de voormalige molenaarswoning. Daartussen de bouwvallige berging en veel braamstruiken, brandnetels en rommel. Op de plek van berging komt het nieuwe bezoekerscentrum te staan. Aan het pleisterwerk op de muur van De Ster is te zien dat er op deze plek eerder een aanbouw heeft gestaan. Deze is rond 1968 gesloopt.
Dit is de ingang van de molen voor de start van het funderingsherstel. Hier werden busjes met in De Ster en De Lelie gemalen specerijen verkocht. In dezelfde ruimte was ook een kleine werkplaats ingericht voor het onderhoud van de molen. De deur rechts gaf toegang tot een kleine ontvangstruimte voor bezoekers.
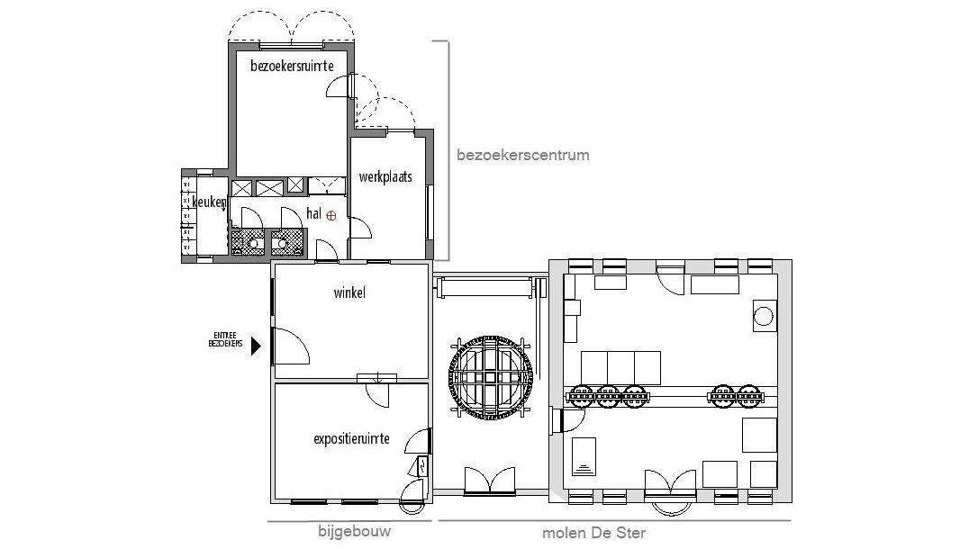
De plannen
De plattegrond geeft een overzicht van De Ster en het bezoekerscentrum. In het bijgebouw direct naast De Ster is een winkel gekomen en een expositieruimte met daarin aandacht voor de historie van de molens, snuiftabak en het malen van specerijen. In de nieuwe winkel zijn in De Ster en De Lelie gemalen specerijen en diverse andere producten te koop. Achter het bijgebouw is richting de Plas het bezoekerscentrum gekomen met daarin een kleine keuken, toiletten, een werkplaats en een ontvangstruimte voor bezoekers.
DE BOUW
Het werk aan het nieuwe bezoekerscentrum begint in oktober 2020 met het leegruimen van het bijgebouw en het slopen van de oude berging. Ook de verhoogde houten vloer in het bezoekerscentrum moest verwijderd worden voor het maken van de nieuwe fundering. Deze werkzaamheden zijn door de vrijwilligers gedaan. Voordat alle werkzaamheden beginnen is er nog een uitbreide fotoreportage gemaakt van de situatie op dat moment.
Tijdens het funderingsherstel is De Ster geopend voor het publiek via de ingang in de kapperij aan de voorkant van de molen. Het specerijen winkeltje verhuist tijdelijk naar de kapperij.
Tegelijk met het funderingsherstel van het bijgebouw wordt ook begonnen met de fundering van het nieuwe bezoekerscentrum. Op deze foto vanaf de balie van De Ster is begonnen met het graafwerk voor de fundering. Daarbij worden nog restanten gevonden van de fundering van de aanbouw die tot 1968 achter het bijgebouw stond.
Donderdag 29 oktober wordt de eerste paal geslagen voor het bezoekerscentrum en het funderingsherstel. De officiële handeling wordt verricht door Niels van der Vlist, directeur van Stadsherstel Historisch Rotterdam en Abel Scholtens, voorzitter van de Stichting Molens aan de Kralingse Plas. Vanwege de geldende coronamaatregelen was de ceremonie zeer eenvoudig.
Vrijdag 27 november wordt de funderingsvloer voor het bezoekerscentrum gestort tegelijk met de funderingsvloer in het bijgebouw naast De Ster. In totaal wordt 27m3 beton gestort. De nieuwe vloer in het bijgebouw rust op het de nieuwe palen en gaat het bijgebouw dragen. Na het storten is de vloer glad afgewerkt.
Na het storten van de nieuwe vloer worden eerst de muren van het oude bijgebouw opgeknapt. De muren zijn nog van 1866 en dat zie je wel een beetje. Het losse pleisterwerk is eraf gehaald en waar nodig zijn de muren versterkt en weer opnieuw gestuct. Op de foto is de tussenmuur tussen het voorste en achterste deel van het bijgebouw te zien. Vroeger was de opening in de muur er niet en werden het voorste en het achterste deel apart bewoond. Van onder de pleisterlaag op de tussenmuur kwam de plek van de schouw te voorschijn. Beide woningen hadden een schouw tegen de tussenmuur.
Sneeuw en kou houden de mannen van Aannemersbedrijf F. Bijl en Zn. B.V. niet tegen! Maandag 8 februari 2021 wordt een groot deel van het nieuwe bezoekerscentrum opgebouwd. De buitenwanden en het dak zijn in de werkplaats voorbereid en daarna in een keer met een kraan geplaatst.
Eind maart 2021 is de buitenkant van het bezoekerscentrum bijna klaar. Binnen wordt nog volop gewerkt aan aftimmering en elektra.
Eind april '21 is de afwerking bijna klaar. De elektra zit er in en de stukadoor is bijna klaar. In het museum wordt door de vrijwilligers een nieuwe verhoogde vloer aangebracht zoals dat eerst ook was.
Juli 2021 is de vloer in het bezoekerscentrum gelegd en al het schilderwerk klaar. De volgende stap is het inrichten van alle ruimtes en het bestraten van het erf.
Eind augustus 2021 wordt het erf rond het bezoekerscentrum afgewerkt. Er komt een kleinstraatje bij de deuren en de rest wordt op hoogte gebracht en ingezaaid met gras.
In najaar en winter 2021-2022 is het bezoekerscentrum door de vrijwilligers verder ingericht. Het gereedschap en de werkbank kreeg een plek in de nieuwe werkplaats. De bezoekersruimte wordt ingericht met kasten, een grote tafel en een presentatie scherm. In de winkel komt een werkblad met bergruimte er onder en er boven, een toonbank en een kapstokkast.
De opening
Op zaterdag 10 september wordt rond 5 uur ‘s middags bezoekerscentrum geopend door Miek Hioolen. De familie Hioolen was eigenaar van het molencomplex tussen 1803 en 1916. De vader van Miek Hioolen is nog geboren in de grote eigenaarswoning tussen De Ster en De Lelie. Na de opening overhandigt zij ons een fraai met houtsnijwerk versierd kistje dat al lang in het bezit van de familie is. In het kistje zitten tien handgeschreven brieven die toenmalig molenaar Hendrik Bukman in de jaren ‘44-‘45 schreef aan de familie Hioolen. Hij beschrijft daarin zijn ervaringen tijdens het laatste oorlogsjaar.
Voorafgaand aan de openingshandeling hield Niels van der Vlist, directeur van Stadsherstel Historisch Rotterdam, een korte toespraak over de totstandkoming van het bezoekerscentrum. Ook bedankte hij alle fondsen en donateurs die het bezoekerscentrum financieel mogelijk hebben gemaakt. Stadsherstel Historisch Rotterdam is de eigenaar van De Ster en De Lelie. Daarna sprak Abel Scholtens, voorzitter van Stichting Molens aan de Kralingse Plas, de genodigden nog toe. Na het officiële deel van de opening was er nog gelegenheid om De Ster en het bezoekerscentrum te bekijken.
Fondsen
De bouw van het bezoekerscentrum en de restauratie van dit bijgebouw bij De Ster in de jaren 2020-2022 werd mogelijk gemaakt door de financiële steun van:
- Stichting Elise Mathilde Fonds - elisemathilde.nl
- Van der Mandele Stichting - vandermandele.org
- Prins Bernard Cultuurfonds - cultuurfonds.nl
- Provincie Zuid-Holland - www.zuid-holland.nl
- VSB Fonds - vsbfonds.nl
- Stichting Job Dura Fonds - jobdurafonds.nl
- G.Ph. Verhagen - Stichting - verhagenstichting.nl
- Stichting Verzameling van Wijngaarden-Boot
- Stichting Ondernemersbelangen Rotterdam - stichtingondernemersbelangenrotterdam.nl
- Stichting Droom en Daad - www.stichtingdroomendaad.nl
- Stichting Bevordering van Volkskracht - www.volkskracht.nl